Descrizione
In una cornice di villette residenziali immerse nel verde, a pochi minuti sia da Pedara che da Nicolosi, proponiamo una accogliente villetta ideale per chi cerca tranquillità e aria pulita ai piedi dell’Etna, con suggestivi panorami sul vulcano più grande d’Europa.
La proprietà è organizzata in più corpi distinti che garantiscono privacy e grande flessibilità d’uso.
Il corpo centrale si sviluppa su due livelli tra loro autonomi, ciascuno con ingresso indipendente, perfetti per ospitare due nuclei familiari o per coniugare abitazione principale e zona ospiti.
Un secondo volume attiguo, dotato di forno, è pensato come vera e propria area conviviale, ideale per pranzi all’aperto, feste in famiglia e serate con gli amici.
In fondo al giardino si trova una dependance completamente indipendente, perfetta per accogliere parenti o ospiti in totale comfort, oppure da adibire a studio privato o casa vacanze.
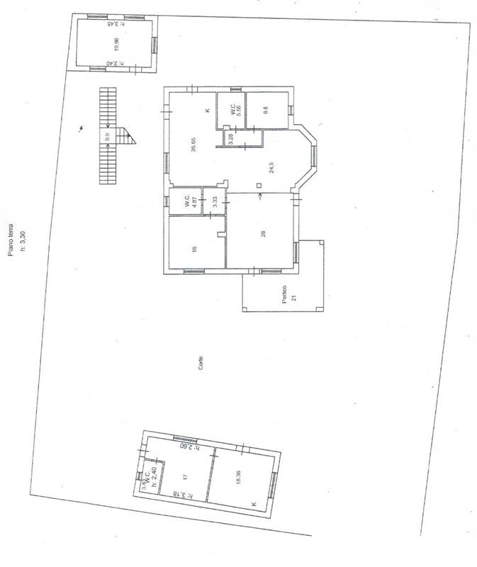
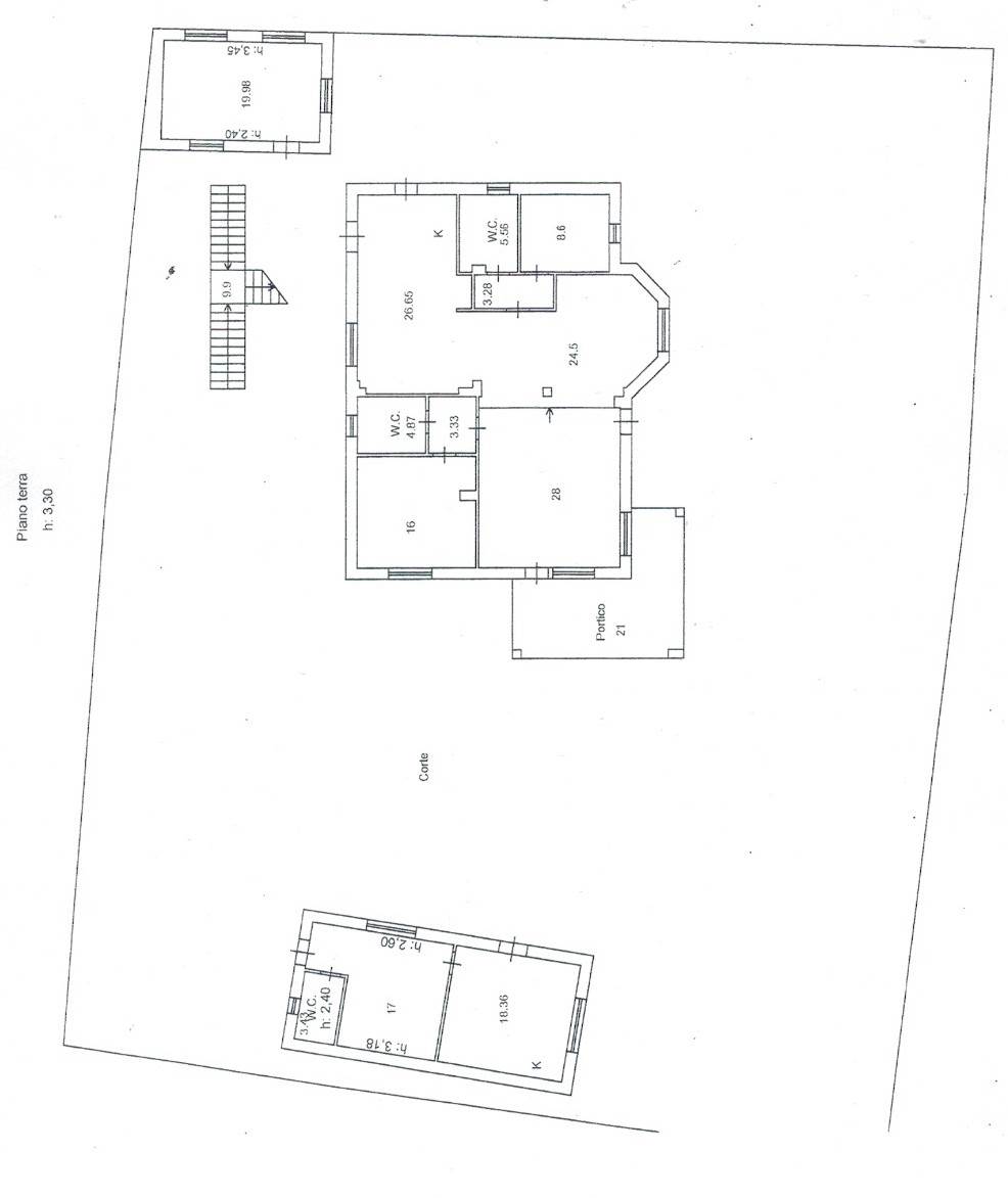
La struttura principale offre un ampio open space nel quale è possibile delineare tre ambienti distinti: una spaziosa zona pranzo con cucina a vista, un confortevole soggiorno e un elegante salone, creando così un cuore della casa luminoso e funzionale.
Il piano terra è completato da due ulteriori camere e da due bagni, pensati per soddisfare le esigenze di una famiglia o per chi desidera spazi ben organizzati anche per lo smart working.
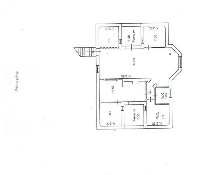
Una scala esterna conduce al livello superiore, anch’esso ben distribuito e particolarmente luminoso grazie a due terrazzini panoramici, dai quali godere di una incantevole vista sull’Etna e dei piacevoli tramonti sui paesaggi etnei.
Tutti gli ambienti sono realizzati con materiali di pregio: parquet, porte, infissi , servizi igienici con vasca idromassaggio , cucina in muratura stile siciliano, forno esterno in pietra. L'esterno è composto da un grande giardino piantumato con alberi di alto fusto . In dettaglio:
-piano terra misura 112mq.
-il livello superiore 100 mq.
- dependance 39 mq.
-zona conviviale 20 mq.
totale calpestabile coperto 270 mq.